Комплект инсталляции УКЛАД для унитаза с кнопкой хром СИ 01.04.54.00.6
Компания АО "Уклад" предлагает первую систему инсталляции, полностью изготовленную в России. Система позволяет устанавливать подвесной унитаз практически в любом месте сантехнического узла. Большинство элементов системы инсталляции скрыты за фальшстеной, на виду остается только кнопочная панель управления. Данная инсталляционная система имеет эстетичный вид, обеспечивает экономию пространства, а также увеличивает удобство уборки.
Система инсталляции комплектуется сантехнической арматурой, которая соответствует ТУ 22.23.12-002-02903999-2016. Стандартная настройка обеспечивает малый слив 3 л полный слив составляет 6 л. Имеется возможность увеличить полный слив до 8,5 л.
Основные преимущества:
полный комплект, все для быстрой и удобной установки
жесткая неразборная рама;
применение высококачественных материалов и комплектующих;
компактная конструкция, предусматривающая возможность установки в малогабаритном туалете;
подключение подводки воды осуществляется внутри бачка, а не снаружи, что обеспечивает возможность замены гибкого подводящего шланга без демонтажа;
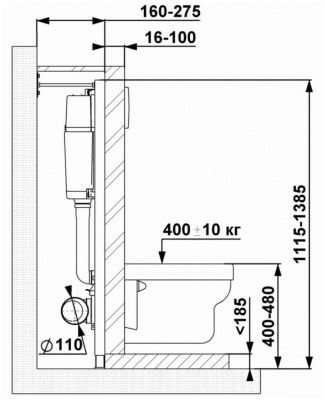
применение стандартных присоединительных размеров: подводка G1/2, выход в канализацию Ø110 мм;
простота и удобство обслуживания;
эффективное ополаскивание чаши унитаза;
конкурентная цена.
Технические характеристики:
Диапазон рабочих давлений, МПа0,05–1
Время заполнения бачка объемом 6 л не более, мин2,5
Стабильность уровня (изменение уровня воды при изменении давления на 0,1 Мпа), не более, мм2,0
Установленный ресурс не менее, тыс. циклов150
Присоединительный размерG1/2-В
Малый слив, л3
Регулируемый полный слив, л5,5…8,5
Гарантия:
На раму и бачок — 10 лет
На сливной и наполнительный механизм — 5 лет.
Характеристики
|
Длина, см
|
27,5 |
|
Ширина, см
|
41 |
|
Высота, см
|
138,5 |
|
Гарантия
|
На раму и бачок — 10 лет; На сливной и наполнительный механизм — 5 лет |
|
Вес, кг
|
20 |
|
Вес брутто, кг
|
20 |
|
Тип установки
|
В пол/в капитальную стену |
|
Материал
|
Сталь |
|
Подвод воды
|
боковой/сверху |
|
Особенность
|
полный комплект, все для быстрой и удобной установкижесткая неразборная рама;применение высококачественных материалов и комплектующих;компактная конструкция, предусматривающая возможность установки в малогабаритном туалете;подключение подводки воды осуществляется внутри бачка, а не снаружи, что обеспечивает возможность замены гибкого подводящего шланга без демонтажа;применение стандартных присоединительных размеров: подводка G1/2, выход в канализацию Ø110 мм;простота и удобство обслуживания;эффективное ополаскивание чаши унитаза;конкурентная цена. |
|
Комплектация
|
Неразборная металлическая рама, пластиковый бачок с установленной арматурой(3/8 л), кнопочный узел, комплект крепежа к стене, комплект крепежа унитаза, прокладка между стеной и унитазом, комплект заглушек и шаблон для монтажа, паспорт-инструкция по установке. |
|
Производитель
|
АО УКЛАД (Россия) |
|
Тип управления
|
механическая кнопка |
|
Арматура
|
2 режима |
Оформить заказ на нашем сайте легко. Просто добавьте выбранные товары в корзину, а затем перейдите на страницу Корзина, проверьте правильность заказанных позиций и нажмите кнопку «Оформить заказ» или «Быстрый заказ».
Функция «Быстрый заказ» позволяет покупателю не проходить всю процедуру оформления заказа самостоятельно. Вы заполняете форму, и через короткое время вам перезвонит менеджер магазина. Он уточнит все условия заказа, ответит на вопросы, касающиеся качества товара, его особенностей. А также подскажет о вариантах оплаты и доставки.
По результатам звонка, пользователь либо, получив уточнения, самостоятельно оформляет заказ, укомплектовав его необходимыми позициями, либо соглашается на оформление в том виде, в котором есть сейчас. Получает подтверждение на почту или на мобильный телефон и ждёт доставки.
Выберите из списка название вашего региона и населённого пункта. Если вы не нашли свой населённый пункт в списке, выберите значение «Другое местоположение» и впишите название своего населённого пункта в графу «Город». Введите правильный индекс.
В зависимости от места жительства вам предложат варианты доставки. Выберите любой удобный способ.
Оплата
Выберите оптимальный способ оплаты.
Введите данные о себе: ФИО, адрес доставки, номер телефона. В поле «Комментарии к заказу» введите сведения, которые могут пригодиться курьеру, например: подъезды в доме считаются справа налево.
Проверьте правильность ввода информации: позиции заказа, выбор местоположения, данные о покупателе. Нажмите кнопку «Оформить заказ».
Наш сервис запоминает данные о пользователе, информацию о заказе и в следующий раз предложит вам повторить к вводу данные предыдущего заказа. Если условия вам не подходят, выбирайте другие варианты.
Вы можете выбрать один из трёх вариантов оплаты:
При выборе варианта оплаты наличными, вы дожидаетесь приезда курьера и передаёте ему сумму за товар в рублях. Курьер предоставляет товар, который можно осмотреть на предмет повреждений, соответствие указанным условиям. Покупатель подписывает товаросопроводительные документы, вносит денежные средства и получает чек.
Также оплата наличными доступна при самовывозе из магазина, оплаты по почте или использовании постамата.
При оформлении заказа в корзине вы можете выбрать вариант безналичной оплаты. Мы принимаем карты Visa и Master Card. Чтобы оплатить покупку, вас перенаправит на сервер системы ASSIST, где вы должны ввести номер карты, срок действия, имя держателя.
Вам могут отказать от авторизации в случае:
- если ваш банк не поддерживает технологию 3D-Secure;
- на карте недостаточно средств для покупки;
- банк не поддерживает услугу платежей в интернете;
- истекло время ожидания ввода данных;
- в данных была допущена ошибка.
В этом случае вы можете повторить авторизацию через 20 минут, воспользоваться другой картой или обратиться в свой банк для решения вопроса.
Безналичным расчётом можно воспользоваться при курьерской доставке, использовании постамата или самовывоза из магазина.
Для оплаты вы можете воспользоваться одной из электронных платёжных систем:
- PayPal;
- WebMoney;
- Яндекс.Деньги.
Вас перенаправит на страницу платежного сервиса, следуя инструкциям, заполните правильную форму.
Наш интернет-магазин предлагает несколько вариантов доставки:
- курьерская;
- самовывоз из магазина;
- постаматы;
- почта России.
Вы можете заказать доставку товара с помощью курьера, который прибудет по указанному адресу в будние дни и субботу с 9.00 до 19.00. Курьерская служба, после поступления товара на склад, свяжется с вами и предложит выбрать удобное время доставки. Уточнит адрес.
Вы вскрываете упаковку при курьере, осматриваете на целостность и соответствие указанной комплектации. Если речь идёт об одежде, допустима примерка. Время осмотра и примерки ограничено 15 минутами. После вы можете отказаться частично или полностью от покупки.
Доставка бесплатна при заказе от 3000 рублей.
*Действует ли в вашем городе курьерская служба, уточняйте у менеджера магазина.
Вы можете забрать товар в одном из магазинов, сотрудничающих с нами. Список торговых точек, которые принимают заказы от нашей компании появится у вас в корзине. Когда заказ поступит в ваш город, вам придёт уведомление. Вы просто идёте в этот магазин, обращаетесь к сотруднику в кассовой зоне и называете номер заказа. Забрать покупку может ваш друг или родственник, который знает номер и имя, на кого он оформлен.
Постамат – это терминал с автоматизированной системой для хранения заказанных товаров. Удобство в том, что человек может забрать заказ в любое удобное время.
- в момент оформления заказа на сайте, вы выбираете удобный для себя постамат, если такая система работает в вашем городе;
- на ваш телефон или e-mail придет уникальный код, это значит, что товар доставлен в постамат;
- вы приходите к постамату, вводите полученный код и следует инструкциям автомата;
- оплачиваете заказ в терминале постамата;
- забираете товар.
Срок хранения в постамате 3 дня, но можно продлить ещё на аналогичный срок. Чтобы уточнить информацию и продлить время хранения зайдите на сайт нашего партнера, введите номер заказа и телефон и следуйте подсказкам на сайте.
Если в вашем городе не действует курьерская служба и постаматы, то вы можете заказать доставку через почту России. Сразу по прибытии товара, на ваш адрес придет извещение о посылке.
Перед оплатой вы можете оценить состояние коробки (не вскрывая): вес, целостность. Если вам кажется, что заказ не соответствует параметрам или коробка повреждена, попросите сотрудника почты составить акт о вскрытии. Вскрывать коробку самостоятельно вы можете только после того, как оплатили заказ.
Один заказ может содержать не больше 10 позиций и его стоимость не должна превышать 100 тысяч рублей.




























































































